久草在线最新视频I国产美女视频网站I国语精品视频I色播五月激情综合网I九九热久久免费视频I大荫蒂欧美视频另类xxxx

陜西西安建筑科技大學禮堂吸音工程

2018-7-2 17:43:01 諾聲聲學

多用途禮堂通常以大型集會為主,兼顧舞臺文藝演出、電影的放映。因此在對禮堂進行規劃時就要做好結構、聲學設計,且根據需求合理配置設備,以達到在禮堂里舉辦各種活動的時候視聽效果俱佳。

在國家標準《劇院、電影院和多用途廳堂建筑聲學設計規范》(GB/T50356—2005)中,提出了一般要求:多用途禮堂的觀眾音質主要應保證語言清晰,廳內各處還宜有合適的相對強感和均勻度。觀眾廳內任何位置上不得出現回聲、多重回聲、顫動回聲、聲聚焦共振等缺陷,且不受設備噪聲、放映機房噪聲以及外界環境噪聲的干擾。

西安建筑科技大學禮堂吸音工程

西安建筑科技大學草堂校區位于秦嶺北麓生態旅游觀光帶及關中環線環山公路上。整個校區三面環山,南望子房、圭峰;間有高冠峪、詳峪、紫閣峪、太平峪等一眾水系,山水相望,充分顯示了秦嶺北麓良好的生態環境。

草堂校區建筑風格主要承襲了秦漢建筑風格,并加以現代建筑元素。整個校區的設計理念是“承襲歷史,傳承文明,回應時代,創造未來,改革體制,塑造特色,以人為本,和諧共生,開放融合,動態發展,尊重自然,天人合一”。

西安建筑科技大學草堂校區禮堂是一個具有多功能用途的綜合性的場所,禮堂聲學設計應該要滿足大型會議及各項演出活動等的需求。其主要聲學設計為語音清晰,音樂豐滿,無聲學缺陷,達到國家聲學標準要求。


該禮堂的聲學特點:

1、內部空間容積大,所需的吸聲量大。

2、內部為公眾活動場所,對環保消防條件要求高,因而要求工程能夠滿足有關的國家規范。

3、該禮堂為公眾活動場館,因此對裝飾的美觀有很高的要求。

西安建筑科技大學禮堂內部

根據場地實際要求以及相關建筑聲學設計規范,決定禮堂內聲學設計主要采用槽木吸音板、穿孔吸音板,基本解決禮堂內聲學音質問題,并滿足國家聲學標準要求。

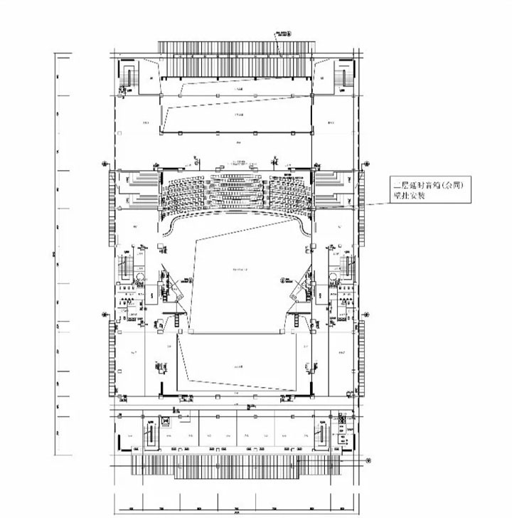
西安建筑科技大學禮堂設計圖1

西安建筑科技大學禮堂設計圖2

經改造后禮堂內聲學設計效果:

1、裝飾美觀大方,視覺感受舒適良好;

2、吸音材料沒有玻璃纖維粉塵污染,各項環保指數均在國家標準以內;

3、吸音材料的防火性能滿足消防要求。

整個設計按照國家禮堂聲學標準設計,做了聲學模擬計算,基本解決禮堂內聲學音質問題。

西安建筑科技大學禮堂竣工


本文標簽:陜西 西安 大學 禮堂